Stable for sale torre caracciolo 27, Marano di Napoli, locality Marano

Campania Napoli Marano di Napoli Marano Ref. AD-2601V
    torre caracciolo 27
+

Sports facilities

Price
€ 420.000
Type
Sale
Category
Stable
Property Type
Entire property
Destination
Residential
Region
Campania
City
Napoli
Town
Marano di Napoli
Locality
Marano
Area
790 sqm Details
Commercial Area
1795 sqm
Rooms
10
Bathrooms
2
Disabled bathroom
No

**Sports Facilities for sale**
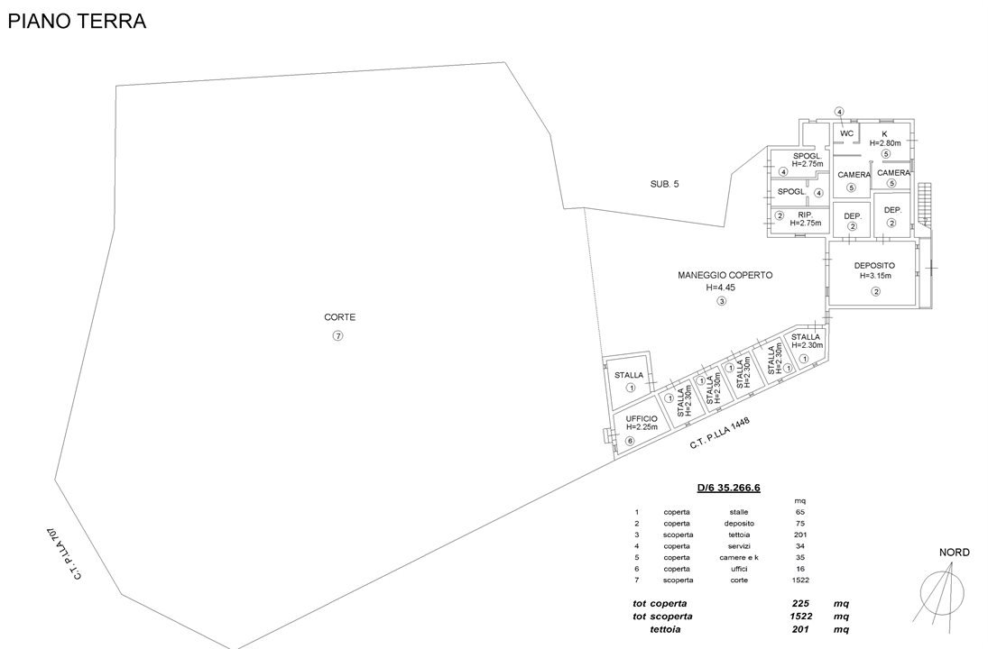
Discover a unique opportunity with this real estate compendium dedicated to sports activities, located in a suggestive location with a breathtaking view. The property offers ample space for the construction of sports facilities with the possibility of taking advantage of large outdoor areas (over 2500 square meters including green areas, courtyards and parking areas). Surrounded by greenery, this real estate complex is perfect for those looking for a stimulating and relaxing environment. The covered areas are over 700 square meters, the specifications of which are listed in the published plans. With a large outdoor area covered by a canopy and convenient parking in a fenced area, this place is the perfect choice for those who want to start or expand their sports activity. The complex also includes a residential apartment of about 95 square meters on the first floor, ideal for those who want to combine work and private life. The apartment offers an excellent opportunity to invest or support the main activities that will take place in the main rooms. Don't miss this opportunity! Contact us for more information and to arrange a visit.

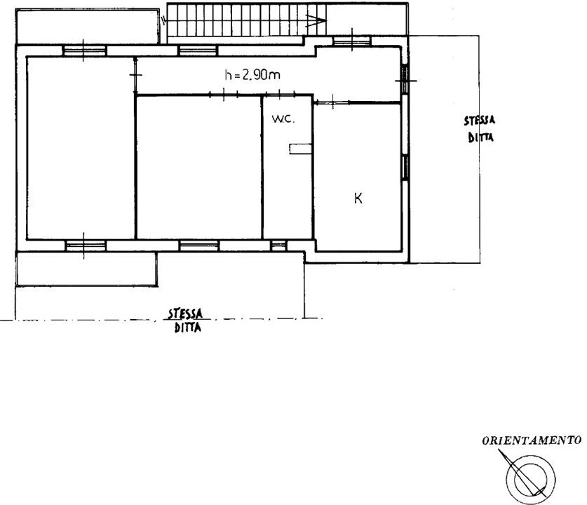
Property specifications: Real estate compendium consisting of category D/6 structures (sports use) formerly: riding stables; a residential property and several uncovered areas
The main structure consists of a horse box, offices, reception, 200 sqm shed and storage

Energy Class: N.D.

Features

Conditions: Be Restored
Heating: Non-Existent
Conditioner: Absent
Parking: Private Courtyard
 
Year Built: 1983
Vacant Property: Yes
Floor: Multi-storey - plans building 2
Income property: No
Access for the Disabled: No
Reception: Yes
 
Terrace: Yes
Balcony: Yes no. 2
Garden Sqm: Private
Free Sides: Four
Reception: Yes
Lift: No
Alarm: No
 
Parking space
Level terrace
Triple Exposure
terrace
Garden

Virtual Tour

Floor Plans

Sports facilities - 1
Sports facilities - 2
Sports facilities - 3
Sports facilities - 4

Map

Welcome! Click on one of our assistants to send a message, they will reply as soon as possible.

Chat via WhatsApp